LE PROJET
> Parcours d’Art Monumental
Le site des Renaudières se situe sur la Ville de Carquefou (44) dans l’agglomération nantaise.
Le projet « Art&Nature, 2014 » aura lieu sur le site des Renaudières du 13 juin au 28 septembre 2014, au nord ouest de laville de Carquefou, proche du centre ville et accessible par un chemin piétonnier.
Le site des Renaudières revêt beaucoup d’intérêts dus à son histoire séculaire, à la géographie des lieux et aux mutations architecturales en cours sur l’ensemble du secteur.
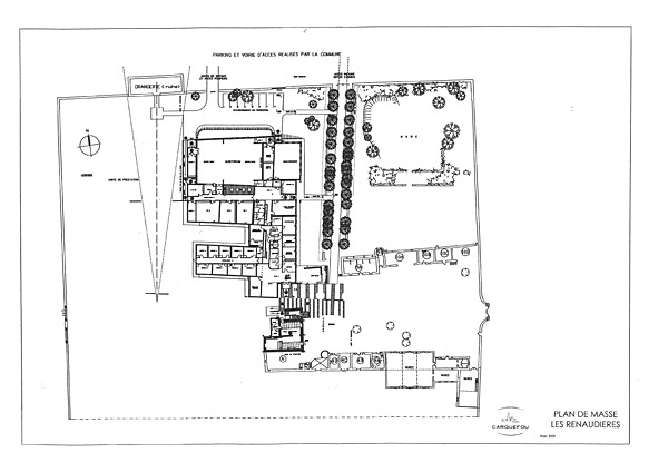
Autour de la nouvelle école de musique, construction contemporaine, s’organisent des paysages anciens et des éléments patrimoniaux en partie restaurés qui se compose d’un four à pain, d’un pigeonnier, d’un corps de chasse et de diverses dépendances.

Un grand jardin clos de murs, ouvrant par deux portails, l’un monumental vers l’est et précédé d’une longue allée arborée, l’autre plus simple vers l’ouest et ouvrant sur un bocage arboré, conduisant aux bords de l’Erdre.
Les bâtiments entourent une cour d’honneur. Deux monumentales allées de chênes, représentent l’axe central des Renaudières.
C’est aujourd’hui un lieu culturel en pleine évolution, ouvert à tous, à quelques centaines de mètres de l’Erdre, accueillant l’Ecole Municipale de Musique, le Musée de l’Erdre, le Manoir des Renaudières (espace d’exposition d’arts plastiques) le FRAC des Pays de la Loire, ainsi qu’un lieu de promenade privilégié pour les riverains.
La thématique générale de ce parcours « Art&nature, 2014 » sera : « structure(s) »
Le but est de valoriser le patrimoine paysager et architectural, existant, en proposant une nouvelle lecture du site par la réalisation de constructions monumentales, en lien avec l’art et le paysage. Le site des Renaudières est un territoire en perpétuel mutation.
L’objectif sera de confronter le patrimoine existant à de nouvelles constructions, ou installations dites actuelles, en prenant en compte, pour exemple, quelques notions ci-dessous :
- principes techniques et constructifs : de structures, d’assemblage, d’habitat, d’abri, d’architecture…
- occupation du territoire environnementale : bio mimesis, biodiversité du site, écosystème, gestion du territoire, …
Les oeuvres seront installées sur un territoire de 3 hectares environ.
Les espaces à investir sont dénommés ci-dessous :
L’allée des Renaudières (1)
L’allée des Renaudières (2)
La cour des Renaudières
La mare
L’orangerie
La clairière 1-2
La charmille de l’école de musique

Les matériaux utilisés sont laissés au libre choix de l’artiste : végétaux, minéraux, matériaux manufacturés, avec une préférence pour les matières naturelles, recyclées et biodégradables.
CONDITIONS ET DUREE DU PROJET
· ORGANISATION
Le projet sera subordonné à la signature préalable d’une convention liant l’artiste et la Ville de Carquefou.
Le candidat s’engage à présenter une structure originale, contemporaine qui questionne l’histoire de l’art, la société, le lieu, les modes de vie, les problématiques culturelles et environnementales…
Le montage des oeuvres est prévu du 9 au 13 juin. Selon les modalités de montage et d’installation, l’artiste sera reçu en résidence à partir du lundi 9 juin jusqu’au vendredi 13 juin au soir. Les artistes devront être présents le mercredi 11 juin de 14h à 18h pour le reportage photographique et les relations avec la presse et le vendredi 13 juin pour le vernissage à 18h.
Les candidats se déplaceront avec leur propre outillage nécessaire à leur travail et devront être autonomes au maximum.
Les candidats devront s’acquitter d’une assurance responsabilité civile et d’une assurance maladie.
Le site des Renaudières est un espace ouvert et reste en accès libre 24h/24h aux visiteurs, à cet effet la Ville ne peut assurer les oeuvres.
· COMMUNICATION
Le candidat autorise la Ville de Carquefou à utiliser sans perception de droits d’auteurs les visuels d’oeuvres pour les supports assurant la communication générale de l’exposition, dans toutes les déclinaisons envisagées (affiches, tracts, cartons d’invitation, site internet…)
Durant la réalisation du projet, les candidats sélectionnés acceptent d’être pris en photo ainsi que leur travail et oeuvre finale, afin d’apparaître sur les supports relatifs à la manifestation.
La ville de Carquefou coordonne et prend en charge la communication globale autour de l’exposition et les actions périphériques (communication, diffusion, rencontres, visites commentées)
· CONDITIONS FINANCIERES
A l’issu de l’installation, la ville de Carquefou s’engage à verser aux artistes une rémunération de 1300€ net. Cette somme comprendra : les frais de création et de présentation, cachet de l’artiste, droits d’auteur .A défaut de présentation par l’artiste de l’attestation annuelle de « dispense de précompte » fournie par la Maison des Artistes, la ville de Carquefou procédera directement au prélèvement sur le cachet, des contributions à la charge de l’artiste.
La ville de Carquefou prendra en charge les frais inhérents à la réalisation (matériaux, locations d’engins…) dans la limite de 600€ maximum sur présentation des factures.
L’hébergement, les frais de repas, et de transports seront pris pour partie en charge par la ville de Carquefou.
SELECTION
Critères de sélection des projets :
- Originalité et exigence de la présentation artistique
- Le caractère innovant, créatif, et esthétique
- La réflexion sur le lieu - IN SITU
- La faisabilité technique et budgétaire
- La rédaction et la lisibilité du dossier : lettre d’intention, simulation du projet, croquis explicatif, maquette…
CALENDRIER
Mi-novembre > lancement de l’appel à projet
samedi 22 février > clôture de l’appel à projet
Fin février > sélection des artistes et étude des dossiers
13 juin – 28 septembre > Exposition
MODALITE DE CANDIDATURE
Le dossier de candidature devra contenir :
- la fiche signalétique du projet dument remplie.
- le descriptif du projet avec note d’intention, croquis, simulation du projet dans l’espace, contenu, forme, singularité.
- un CV, (formation, travaux réalisés, expositions, observation et texte court présentant la démarche artistique.)
-le budget prévisionnel faisant apparaitre les différents besoins par poste
-la fiche technique précise et détaillée, du montage et du démontage
- tous documents pouvant servir à l’appréciation de votre travail, DVD, CD, photos.
Télécharger les annexes du dossier
DATE LIMITE DES CANDIDATURES /
SAMEDI 22 FEVRIER 2014
A envoyer à :
Direction de l’Action Culturelle – Ville de Carquefou
BP 60139 - 44471 Carquefou cedex
Ou par courriel : culture(at)mairie-carquefou.fr.
Plus d’informations au 02 28 22 24 40 ou sur www.carquefou.fr
Rubrique loisir/culture/espace d’exposition /art&nature
Dans les jours suivant la réception de votre dossier, vous recevrez un mail confirmant l’enregistrement de votre candidature.


2 comments
APPEL A PROJET / Art&Nature 2014, Carquefou | Veille éco says:
jan 7, 2014
[...] http://www.landarts.fr/appel-a-projet/appel-a-projet-artnature-2014-carquefou/ [...]
Art&Nature 2014, Carquefou | Presenceweb says:
jan 8, 2014
[...] Plus d’infos sur le site landarts.fr… Share this:GoogleTwitterFacebookLinkedInDiggWordPress:J'aime chargement… [...]